高遠町長藤にある木造平屋建ての中古住宅です。
- 所在地
|
- 長野県伊那市 高遠町長藤
|
- 交通
|
- JR飯田線伊那北駅 徒歩10200m 徒歩128分
バス(高遠駅 停歩18分) |
| 築年月 |
1979年7月 |
構造 |
木造 |
| 階建 |
地上 1階 |
部屋階数 |
1階
|
| 面積 |
86.95m² 土地 2014.73m² |
建蔽率/容積率 |
60% / 200% |
| 物件番号 |
|
|
| 設備・条件 |
ガスコンロ 給湯 独立洗面台 バス・トイレ別 温水洗浄便座 室内洗濯機置き場 CATV プロパンガス 公営水道 排水下水 駐車場有 |
伊那東小学校区、生活に必要な施設に徒歩10分以内。
利便性の高い立地です。
- 所在地
|
- 長野県伊那市 境1199番地5
|
- 交通
|
- JR飯田線伊那市駅 徒歩1200m 徒歩16分
|
| 築年月 |
1961/8 |
構造 |
木造 |
| 階建 |
地上 2階 |
部屋階数 |
2階
|
| 面積 |
土地 205.43(約62.14坪)m² |
建蔽率/容積率 |
60% / 200% |
| 区画番号 | |
現況 |
空家 |
| 物件番号 |
|
|
| 設備・条件 |
給湯 独立洗面台 シャワー バス・トイレ別 温水洗浄便座 室内洗濯機置き場 公営水道 排水下水 駐車場有 外物置等収納多し |
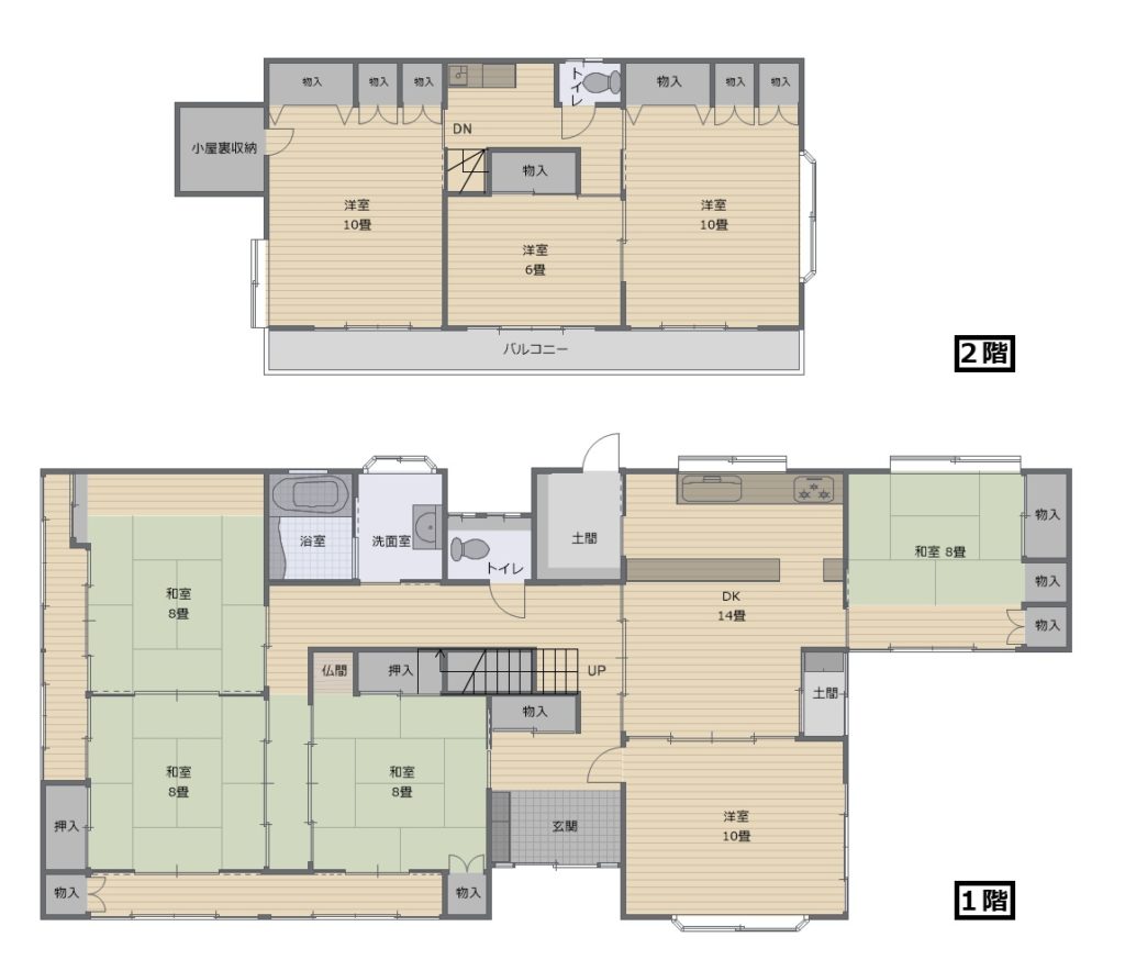
店舗併用住宅あとです。1階部分は飲食店用に改装あり。事業用としても活用可。緑に囲まれた閑静な住居で、近くに隣接する住宅はありませんので気づかいなく使えます。楽器演奏、ペットとの暮らし、飲食店等お考えの方にお勧めです
- 所在地
|
- 長野県上伊那郡宮田村 松本新田
|
- 交通
|
- JR飯田線大田切駅
大型農道100m |
| 築年月 |
平成1年 |
構造 |
木造 |
| 階建 |
地上 2階 |
部屋階数 |
|
| 面積 |
(56.61坪)187.14m² 土地 約200坪m² |
駐車場 |
|
| 区画番号 | |
現況 |
空家 |
| 物件番号 |
|
|
| 設備・条件 |
プロパンガス 井戸 排水浄化槽 駐車場有 駐輪場 バイク置き場 専用庭 水道は井戸水使用につき水道料は無料です!(水質検査済) |
- 所在地
|
- 長野県上伊那郡箕輪町 中箕輪
|
- 交通
|
- JR飯田線伊那松島駅 徒歩400m 徒歩5分
|
| 築年月 |
1991/12 |
構造 |
木造 |
| 階建 |
地上 2階 |
部屋階数 |
|
| 面積 |
218.62m² 土地 752.24m² |
駐車場 |
|
| 区画番号 | |
現況 |
空家 |
| 物件番号 |
|
|
| 設備・条件 |
追い焚き 独立洗面台 ユニットバス バス・トイレ別 プロパンガス 公営水道 排水下水 |
伊那市野底にある離れ付の平屋住宅。
- 所在地
|
- 長野県伊那市 野底
|
- 交通
|
- JR飯田線田畑駅 徒歩1600m 徒歩20分
|
| 築年月 |
1970年3月 |
構造 |
木造 |
| 階建 |
地上 1階 |
部屋階数 |
1階
|
| 面積 |
134.38m² |
建蔽率/容積率 |
60% / 200% |
| 物件番号 |
|
|
| 設備・条件 |
ガスコンロ 追い焚き 洗髪洗面化粧台 バス・トイレ別 CATV プロパンガス 駐車場有 出窓 |
伊那小学校まで徒歩約3分(約200m) コンビニまで徒歩約4分(約260m)
中心市街地徒歩圏内。自宅で カフェやショップを始めたい方にオススメ!家電・家具付です!
- 所在地
|
- 長野県伊那市 坂下
|
- 交通
|
- JR飯田線伊那市駅 徒歩500m 徒歩6分
|
| 築年月 |
2016年6月 |
構造 |
木造 |
| 階建 |
地上 2階 |
部屋階数 |
2階
|
| 面積 |
107.45m² 土地 107.6m² |
駐車場 |
|
| 区画番号 | |
現況 |
空家 |
| 物件番号 |
|
|
| 設備・条件 |
ガスコンロ 二口コンロ 給湯 追い焚き 洗髪洗面化粧台 バス・トイレ別 温水洗浄便座 エアコン 室内洗濯機置き場 TVドアホン プロパンガス 公営水道 排水下水 駐車場有 フローリング 家具・家電付 |
閑静な住宅地に建つ広めの住宅です。日当たり良く各室広目。3カ所の納戸も各3.5帖以上です。(屋根裏収納もあり)キッチン横の収納庫もありがたいです。
公園が目の前でお子様の遊び場にも不自由しません。程度良く大幅なリフォーム不要と思われます。バイパス近く大型店ン多し。即引き渡し可。
- 所在地
|
- 長野県駒ヶ根市 南田
|
- 交通
|
- JR飯田線小町屋駅
JR飯田線駒ヶ根駅 駒ヶ根市道中割経塚線北 |
| 築年月 |
平成14年8月 |
構造 |
木造 |
| 階建 |
地上 2階 |
部屋階数 |
|
| 面積 |
206.60m² 土地 (81.94坪)270.89m² |
建蔽率/容積率 |
60% / 200% |
| 区画番号 | |
現況 |
空家 |
| 物件番号 |
|
|
| 設備・条件 |
システムキッチン カウンターキッチン 給湯 追い焚き 洗髪洗面化粧台 ユニットバス 浴室1.6x2.0m以上 バス・トイレ別 温水洗浄便座 エアコン トランクルーム W.INクローゼット プロパンガス 公営水道 排水下水 駐車場有 二世帯住宅 バリアフリー リビングに堀コタツあり 南側にサンルームになるスペースあります |
- 所在地
|
- 長野県伊那市 富県5755-2
|
- 交通
|
- JR飯田線下島駅 徒歩6500m 徒歩82分
|
| 築年月 |
1986/08 |
構造 |
木造 |
| 面積 |
土地 1011.23m² |
建蔽率/容積率 |
60% / 200% |
| 物件番号 |
|
|
| 設備・条件 |
ガスコンロ IHコンロ 給湯 追い焚き バス・トイレ別 温水洗浄便座 プロパンガス 公営水道 排水下水 駐車場有 専用庭 出窓 |
- 所在地
|
- 長野県伊那市 西町5997-1
|
- 交通
|
- JR飯田線伊那市駅 徒歩1600m 徒歩20分
バス(城南町4 乗9分 停歩2分) 中央自動車道 小黒川SIC 車で約5分 |
| 築年月 |
1980/04 |
構造 |
木造 |
| 階建 |
地上 2階 |
部屋階数 |
|
| 面積 |
177.51m² 土地 1363.73m² |
建蔽率/容積率 |
60% / 200% |
| 物件番号 |
|
|
| 設備・条件 |
IHコンロ 給湯 追い焚き 洗髪洗面化粧台 バス・トイレ別 温水洗浄便座 エアコン 室内洗濯機置き場 プロパンガス 公営水道 排水下水 駐車場有 駐輪場 バイク置き場 専用庭 バルコニー |
新築土地付き平家ニューモデル住宅
エクステリア(カーポート、ウッドデッキ)整備後引渡
- 所在地
|
- 長野県伊那市 上伊那郡南箕輪村
|
- 交通
|
- JR飯田線田畑駅 徒歩850m 徒歩11分
|
| 築年月 |
2026年月 |
構造 |
木造 |
| 階建 |
地上 1階 |
部屋階数 |
|
| 面積 |
87.77m² 土地 253.77m² |
駐車場 |
- 駐車場
- 空有
|
| 区画番号 | |
現況 |
未完成 |
| 物件番号 |
|
|
| 設備・条件 |
IHコンロ カウンターキッチン 給湯 追い焚き ユニットバス バス・トイレ別 温水洗浄便座 エアコン W.INクローゼット TVドアホン 公営水道 排水下水 駐車場有 オール電化 |